Котёл КВ-0,35 на угле с ТЛЗМ в Новгороде

Стальные котлы КВ-0.35 на угле представляют собой универсальные устройства для нагрева воды, которые оборудованы топкой типа ТЛЗМ. Нагревательные агрегаты отличаются высокой продуктивностью работы и практичностью целевой эксплуатации. Использование твердого топлива и системы специальной конфигурации позволяет осуществлять нагрев воды до 115 градусов.

Цена:
250 000 руб.
Количество:
Отправляя свои личные данные через формы на сайте, Вы даёте своё согласие на обработку персональных данных согласно Федеральному закону №152-ФЗ «О персональных данных» от 27.07.2006 г. в редакции от 01.07.2017.

Устройство и принцип работы

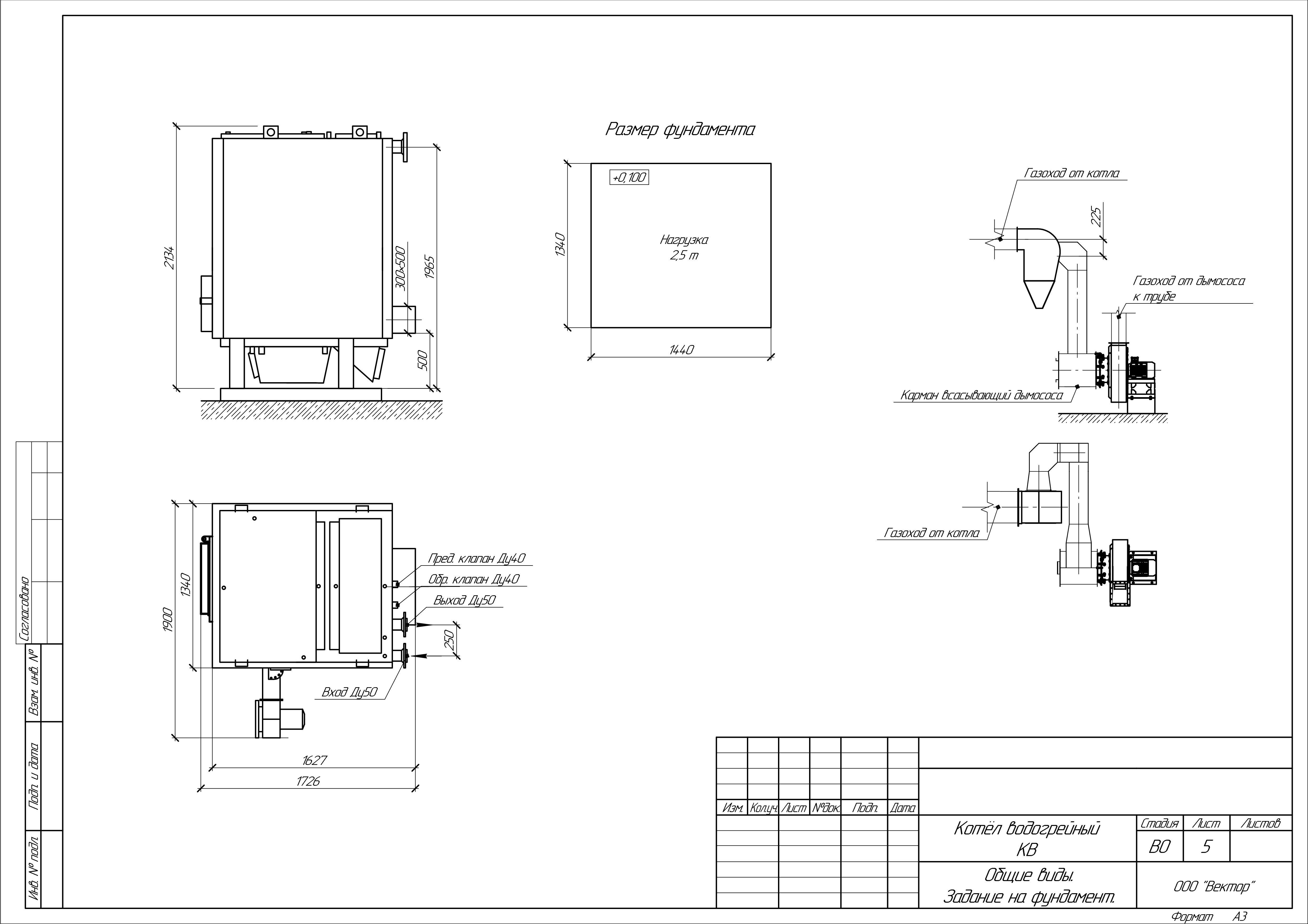
Конструктивно нагревательное оборудование КВ-0.35 на угле с топкой ТЛЗМ состоит из прочного сварного корпуса, который изготовлен из специальной газоплотной стали. Стенки котла отлично противодействуют сильному нагреву. Топка ТЛЗМ подразумевает наличие механизированных или пневматических забрасывателей. Данный тип конструкции рассчитан на непрерывную подачу твердого топлива внутрь камеры сгорания.

Специальная конструкция топки позволяет оптимизировать процесс горения твердого топлива разных фракций, включая пылевые фрагменты. При этом сама камера состоит из валов, колосникового привода, металлической рамы, забрасывателя и подвижного полотна. Все составляющие части имеют простую конструкцию, что положительно сказывается на легкости обслуживания.

Особенности и преимущества

  • широкий диапазон регулировок;
  • минимальные потери тепла;
  • механизированная подача топлива;
  • автоматизированный процесс горения;
  • высокая эффективность оборудования.

Размещение и установка

Перед проведением основных монтажных работ рассчитывается эффективность смежных единиц обслуживания котла КВ-0.35 на угле с топкой ТЛЗМ. Специалисты проверяют наличие смазки в редукторах, а также осматривают другие сборочные части нагревательной системы. Важно подготовить место для монтажа и все подходящие коммуникации. Установка осуществляется с использованием измерительного оборудования в виде уровня и рулетки.

Монтажники учитывают требования по зазорам, что немаловажно для нормальной исправной работы котла. После монтажа топки осуществляется проверка всех подвижных частей и механизмов. При обкатке все ключевые узлы должны иметь плавный ход без каких-либо технических дефектов.

Эксплуатация и техническое обслуживание

В ходе эксплуатации оборудования КВ-0.35 на угле с топкой ТЛЗМ большое внимание уделяют топке и навесным узлам. Важно систематически производить чистку решетки путем полного удаления шлака. После полной очистки решетчатой части потребуется произвести аналогичные процедуры для бункера. При этом вентиляционное оборудование котла отключается лишь через 3 часа после удаления золы и шлака.

Купить котёл КВ-0.35 на угле с топкой ТЛЗМ

Приобрести КВ-0.35 на угле с топкой ТЛЗМ можно через нашу компанию, которая имеет широкий ассортимент заводской продукции. Приобретение возможно путем составления заявки на заказ. Заказать продукцию можно через телефон или специальную форму на сайте. На котёл предоставляются официальные гарантии.

Характеристики
Тип: КВ
Вид топлива: Каменный уголь$Бурый уголь
Мощность: 0.3 Гкал
Мощность: 350 кВт
Мощность: 0.35 МВт
КПД, не менее: 85 %
Вид топки: Механическая ТЛЗМ
Класс котла: 2
Отапливаемая площадь: 3500 м²
Отапливаемый объём: 10500 м³
Тяга: Принудительная
Температура воды на выходе, не менее: 70...95 °С
Аэродинамическое сопротивление: 46 Па (мм. вод. ст.)
Расход теплоносителя среды: 12 м³/ч
Расход топлива: 82 кг/ч
Низшая теплота сгорания топлива: 5200 кКал/кг
Давление рабочей среды: 0,3-0,6 (3,0-6,0) МПа (кгс/cм²)
Гидравлическое сопротивление при перепаде t: 0,05 МПа (кгс/cм²)
Температура уходящих газов: 180…200 °C
Радиационная поверхность нагрева: 9.1 м²
Конвективная поверхность нагрева: 16.4 м²
Номинальное разрежение в топке при работе: 20…40 Па
Габаритные размеры (ДxШxВ): 1982x1340x2100 м
Масса котла (без воды): 1840 кг
Расчетный срок службы, не менее: 10 лет

Города поставок

Москва
Пн-Пт 09:00 - 18:00
Сб 09:00 - 17:00
Карачаево-Черкесская Республика
Пн-Пт 09:00 - 18:00
Сб 09:00 - 17:00
Екатеринбург
Пн-Пт 09:00 - 18:00
Сб 09:00 - 17:00

Совершите покупку за 4 шага

Шаг 1
Выберите товары из каталога
Шаг 2
Поместите нужные вам товары в корзины
Шаг 3
Укажите свои контактные данные в форме обратной связи
Шаг 5
Ожидайте звонка от менеджера для оформления покупки

Похожие товары

КВм
Котлы КВм
Цена от 0 руб.
Отопительные котлы
Водогрейный котел КВм-7.0 на ДВО используется для нагрева жидкости до 115 °С, применяемой в системах отопления и горячего водоснабжения. Отопительные приборы КВм-7.0 способны прогревать помещения площадью до 70000 м². Твердотопливный котел оснащается механической топкой на древесных отходах со шнековой подачей. Дополнительно к агрегату приобретаются сопутствующие товары: вентиляторы, дымососы, циклоны, дымовые трубы, бункер топки и другое котельное оборудование.
Отопительные котлы
Водогрейный котел КВм-6.3 на ДВО используется для нагрева жидкости до 115 °С, применяемой в системах отопления и горячего водоснабжения. Отопительные приборы КВм-6.3 способны прогревать помещения площадью до 63000 м². Твердотопливный котел оснащается механической топкой на древесных отходах со шнековой подачей. Дополнительно к агрегату приобретаются сопутствующие товары: вентиляторы, дымососы, циклоны, дымовые трубы, бункер топки и другое котельное оборудование.
Вы смотрели эти товары
Отопительные котлы
Водогрейный, отопительный, автоматический, жидкотопливный, отработанное масло, под горелку, 0,6 МВт (600 кВт), 95...110 °C, 0,6 МПа (кгс/cм²).
Подъемники СКИП
Скиповый подъемник СКИП-200 — это грузоподъёмный механизм, состоящий из ковша, рельсовых путей и электролебедки. Скип используется для перемещения сыпучих и с мелкой фракцией грузов. Например, в строительном деле подобное оборудование служит для подачи в бетонную смесь наполнителей. Как правило, подъемник данной конструкции используется в угольных модульных котельных, для подачи топлива в топки ТШПМ. Можно с помощью скипа уголь доставлять непосредственно в топку или в накопитель, откуда транспортерами его переправить в топки котлов.
Дробилки
Промышленная дробилка ВДП-15 представляет собой дробилку-питатель, которая используется для предварительного измельчения угля и подачи готового сырья на транспортер. Оборудование способно разбивать крупную фракцию твердого топлива для оптимизации процессов горения. Применение дробилки данного типа позволяет исключить остановку котельной на случай выхода из строя основного бункера с углем.